Обяви За нас Контакти
Продава ПАРЦЕЛ
област Ловеч, с. Рибарица
199 000 €
389 210.17 лв.

(68 €, 133.00 лв./m2)
Цената е с включено ДДС
История на цената
Публикувана в 14:08 на 11 март, 2024 год.
Обявата е посетена 1537 пъти.
Площ:
2930 m2
Ток:
ДА
Вода:
ДА

Описание на имота:


LUXIMMO FINEST ESTATES: www.luximmo.bg
Представяме парцел с проект за еднофамилна къща в с. Рибарица - едно от най-очарователните селища в Тетевенския балкан. Местоположението предоставя уникални възможности за съчетание на спокойствие, удобство и наслаждаване на прелестните гледки към околната природа.

Възможността да притежавате този уникален кът от рая стои пред Вас. Парцелът, с площ от 2930 кв.м, е обект на изключително интересна инвестиция, предвиден за строеж на еднофамилна жилищна сграда и лятна кухня. С разрешение за строеж, този проект обещава да бъде не просто дом, а истински израз на функционалност и стил.

От прозорците на Вашата нова къща ще се разкриват удивителни гледки към планината, докато вътрешното пространство е архитектурно предназначено за максимален комфорт и удобство.

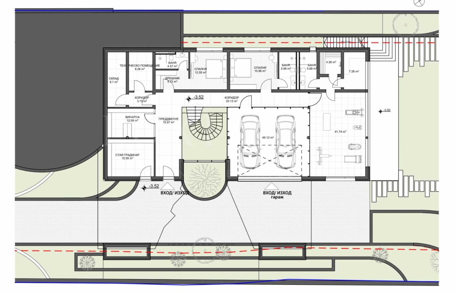
Разпределение:

първо ниво - двоен гараж, фитнес, стая за градинар, винарна, помещение за сауна, баня и парна баня, две спални със самостоятелни бани към тях, сервизни помещения;
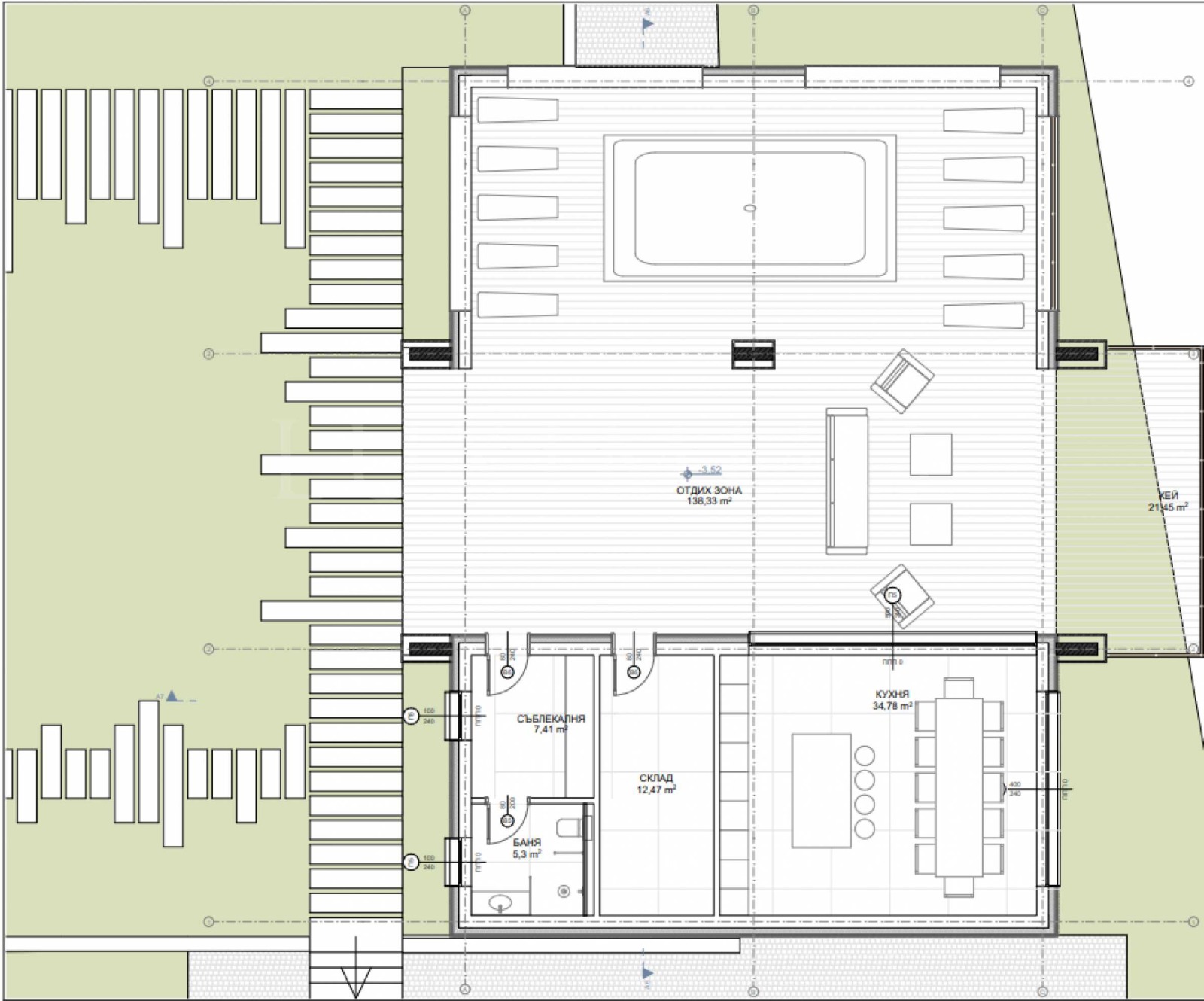
второ ниво - просторна всекидневна с кухня, трапезария и складово помещение, излаз на тераса, тоалетна за гости, две спални със собствени бани, едната от които разполага и с дрешник;
лятна кухня и зона за релакс с прилежащи помощни помещения.

Локация

Село Рибарица е сърцето на Тетевенския балкан. Разположено в прегръдките на величествените планини и обградено от река Лесновска, това малко, но очарователно село представлява идеалното място за тези, които търсят спокойствие и близост до природата. Село Рибарица впечатлява с изключителната си природна красота и разнообразие от активни възможности за почивка и развлечения на открито. От планински преходи и велосипедни маршрути до риболов и планински походи, селото предлага непрекъснат поток от приключения за любителите на активния отдих. Но Рибарица не е само за любителите на спортове и приключения. Тук се откриват истински малки бисери на българската култура и традиции - от древните църкви и паметници до местните ресторанти, ...

За повече информация свържете се с нас и цитирайте референтния номер на имота. Моля, кажете, че сте видeли обявата в този сайт.
Референтен номер: SOF-119533
Тел: 0882 817 588, 02 425 69 49
Отговорен брокер:д-р Гергана Цанкова
Виж всички обяви в luximmogeneral.bazar.bg или тук
За контакт:
0882817588
Брокер:
д-р Гергана Цанкова
0882 817 588
Още оферти от брокера: Продава | Дава под наем | Купува | Наема
Агенция:
ЛУКСИММО - ИМОТИ В СТРАНАТА
02 9 11 55; 0883 888 888
ЛУКСИММО - ИМОТИ В СТРАНАТА logo
Медал за прослужено време
В imot.bg от 2011 г.
luximmogeneral.imot.bg
Адрес:
област София, гр. София, бул. 'Черни връх' 51-Г, етаж 7(офис сграда Realtons Pl
http://www.luximmo.bg
ИЗПРАТИ ЗАПИТВАНЕ
ИЗПРАТИ ЗАПИТВАНЕТО

Продава ПАРЦЕЛ
област Ловеч, с. Рибарица
Обява: 1r171015889175400

199 000 €
389 210.17 лв.
История на цената
(68 €, 133.00 лв./m2)

Цената е с включено ДДС
ЗАПАЗИ ОБЯВАТА

Местоположение: област Ловеч, с. Рибарица