Обяви За нас Контакти
Продава КЪЩА
област Пловдив, с. Белащица
540 000 €
1 056 148.20 лв.

(1 588 €, 3 105.86 лв./m2)
Цената е с включено ДДС
История на цената
Коригирана в 14:49 на 24 април, 2025 год.
Обявата е посетена 1114 пъти.
Площ:
340 m2
Двор:
741 m2
Газ:
НЕ
ТEЦ:
НЕ
Строителство:
Тухла, 2025 г.

Описание на имота:


LUXIMMO FINEST ESTATES: www.luximmo.bg
Представяме ексклузивно луксозна smart къща, разположена върху собствен парцел от 740 кв.м, с асфалтиран достъп, напълно изградена инфраструктура и уникални гледки.

Сградата е в процес на строителство, Акт 14 е предвиден до април 2025 г., Акт 15 септември 2025 г., а Акт 16 се очаква декември 2025 г. Къщата се издава в степен на завършеност по БДС, на мазилка и замазка, но с изключително много луксозни довършителни работи и екстри, затова непременно прочетете описанието!

Дизайн, вдъхновен от изтока нестандартна архитектура с големи обеми и обмислени функции.

Параметри на имота

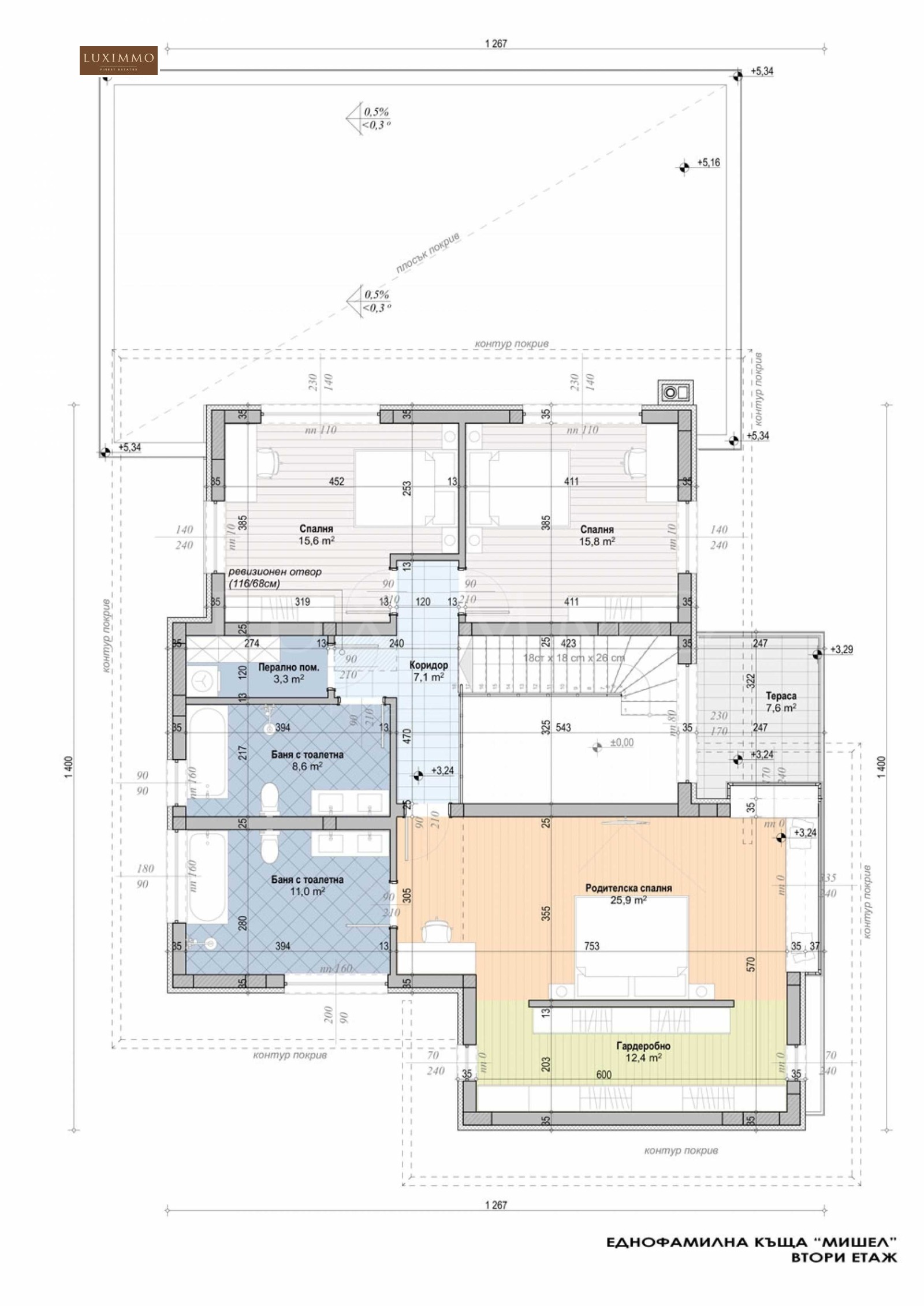
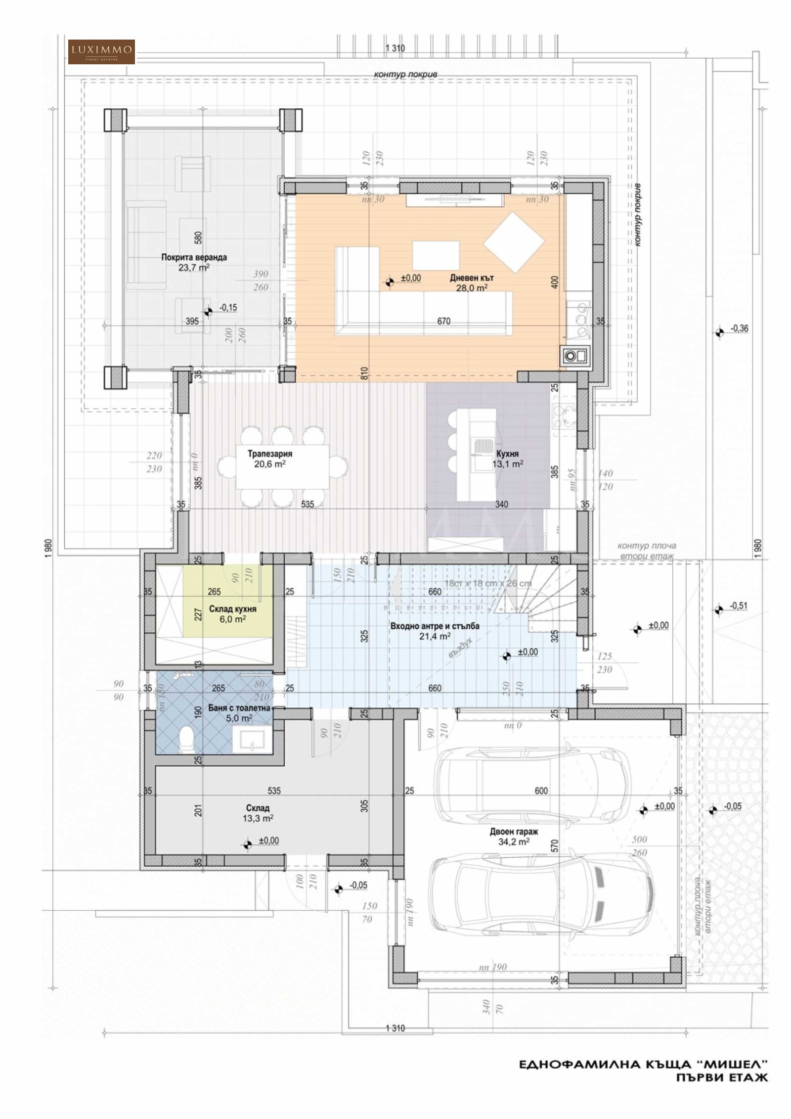
Къщата с РЗП от 340 кв.м има следното функционално разпределение:
първи етаж - просторен хол с трапезария и кухня - 62 кв.м, покрита веранда - 24 кв.м, баня/тоалетна за гости - 5 кв.м, склад - 6 кв.м, машинно помещение - 14 кв.м, двоен гараж с топла връзка - 34 кв.м;
втори етаж - мастър спалня с гледка към града (26 кв.м) с прилежаща баня (11 кв.м) и дрешник (12 кв.м), 2 допълнителни спални по 16 кв.м, баня - 9 кв.м, перално помещение - 3 кв.м, балкон - 7 кв.м.

Защо това е домът на бъдещето?
смарт система за управление на дома BETICINO;
смарт управление за осветление, поливна система и сигурност;
изградени кабелни пътища и датчици за СОТ;
2 рутера - на всеки етаж по един;
4 камери за видеонаблюдение;
домофонна система;
термопомпа 'вода-въздух' VIESSMANN отопление и охлаждане, завършено до ключ;
централен бойлер от 200 литра, свързан с отоплителната система;
сондаж за вода, свързан с хидрофорна система;
пречиствателна станция;
зарядна станция за електромобили.

А защо наричаме строителството ни луксозно?
покривна система с керемиди JACOBI WALTHER;
подкеремидно фолио и паромембрана KLOBER;
коминни системи SCHIEDEL;
дограма REYNAERS ALUMINIUM с дизайнерски дръжки, ролкова система за заключване и автоматично затваряне на входната врата;
покривен прозорец ROTO Австрия;
вградени структури за тоалетни GROHE;
красива фасада ...

За повече информация свържете се с нас и цитирайте референтния номер на имота. Моля, кажете, че сте видeли обявата в този сайт.
Референтен номер: PLV-128462
Тел: 0884 013 614, 032 349 619
Отговорен брокер:Мариела Желева
Виж всички обяви в luximmogeneral.bazar.bg или тук
Особености
Тухла
С гараж
С паркинг
За контакт:
0884013614
Брокер:
Мариела Желева
0884 013 614
Още оферти от брокера: Продава | Дава под наем | Купува | Наема
Агенция:
ЛУКСИММО - ИМОТИ В СТРАНАТА
02 9 11 55; 0883 888 888
ЛУКСИММО - ИМОТИ В СТРАНАТА logo
Медал за прослужено време
В imot.bg от 2011 г.
luximmogeneral.imot.bg
Адрес:
област София, гр. София, бул. 'Черни връх' 51-Г, етаж 7(офис сграда Realtons Pl
http://www.luximmo.bg
ИЗПРАТИ ЗАПИТВАНЕ
ИЗПРАТИ ЗАПИТВАНЕТО

Продава КЪЩА
област Пловдив, с. Белащица
Обява: 1j173859845513865

540 000 €
1 056 148.20 лв.
История на цената
(1 588 €, 3 105.86 лв./m2)

Цената е с включено ДДС
ЗАПАЗИ ОБЯВАТА

Местоположение: област Пловдив, с. Белащица